We offer a full range of structural engineering & consulting services, including:
Engineered Beams and PostsConventional Framing
Reinforcing SteelBasement & Retaining WallsSlabs
Pre-Engineered Metal BuildingsShrink-Swell Soils
Primary & Misc SteelConnection Design
Accurate & CompleteAttention to Detail
CMU Walls & PiersBrick
Concrete & CMU
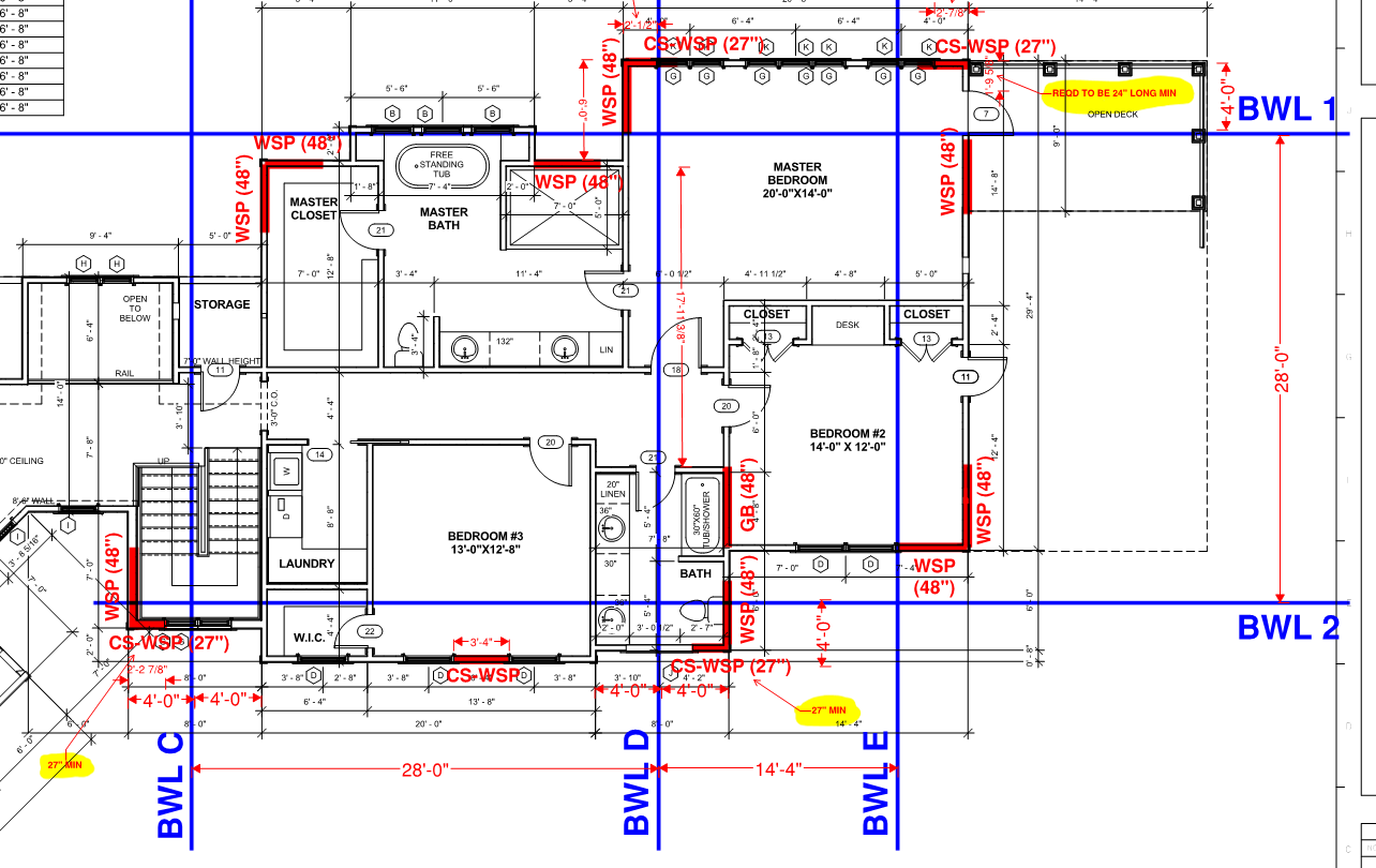
Compliance with IRC Prescriptive RequirementsWall Bracing Plans for Permit
Beam and Post SizingShear Walls
Misc Steel, Stairs, HandrailsDelegated Design Items
Rendering & VisualizationAutodesk Revit Expertise
Broken / Modified Truss Repair Details
Multi-Level Wood DesignPodium Level Design
Structural Failure InvestigationsForensic Engineering
Structural Condition SurveysFoundation Inspections
Analysis of Existing ConditionsRepair Details